Căn Hộ Đột Phá Với Thiết Kế Giấu Cửa Và Không Gian Mở Rộng
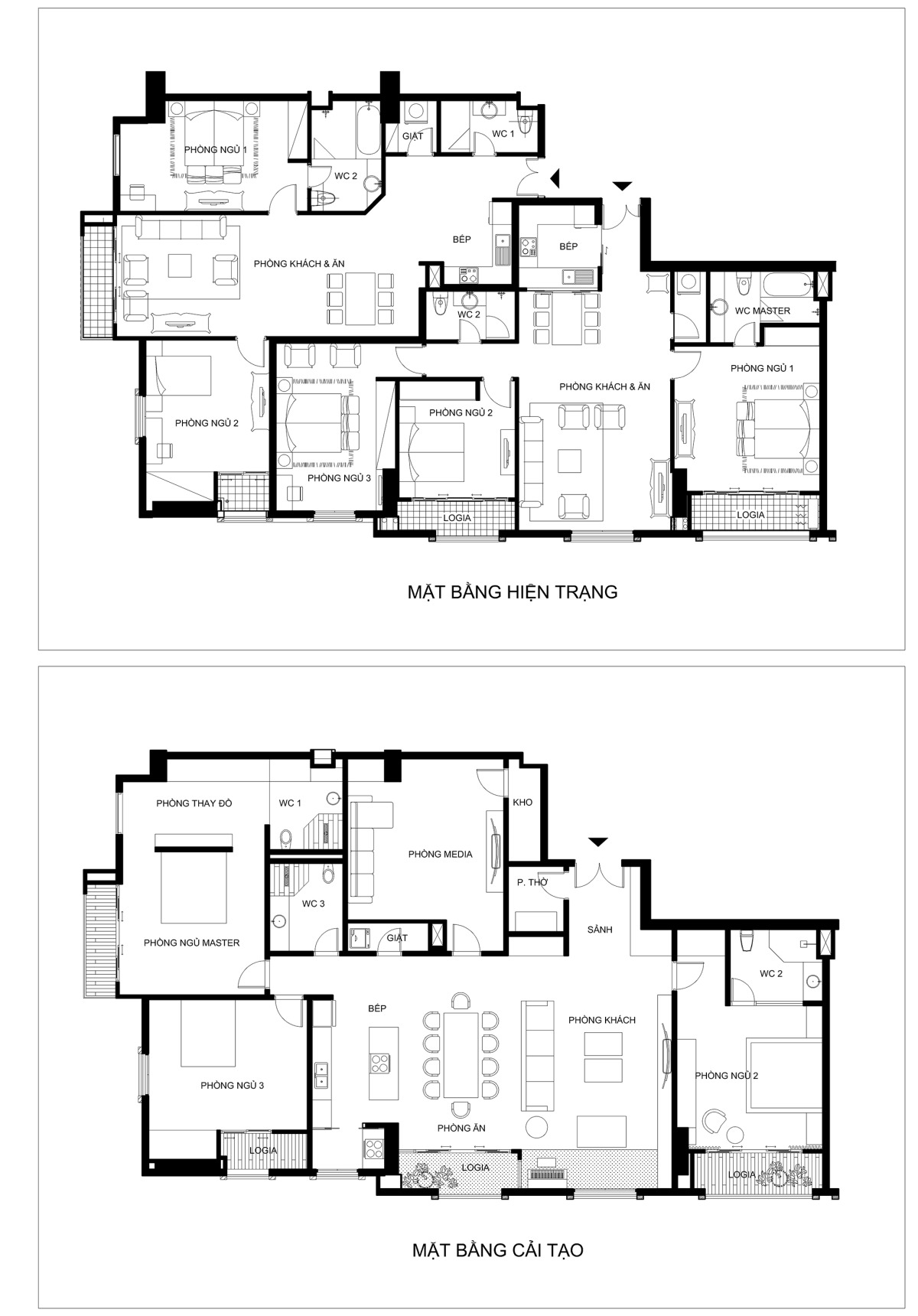
Một căn hộ 250 m² tại quận Đống Đa, Hà Nội, đã được cải tạo lại hoàn toàn để tạo ra không gian sống tiện nghi, hiện đại. Căn hộ này vốn là sự kết hợp của hai căn hộ liền kề, được thiết kế lại với các yếu tố không gian mở, mang đến sự thoải mái, thông thoáng cho các thành viên trong gia đình.
Không Gian Thoáng Đãng, Sáng Sủa

Căn hộ sử dụng phương pháp “đập thông” để tạo ra một không gian rộng lớn, với các phòng được bố trí thông minh và hợp lý. Một trong những điểm nổi bật là không gian phòng khách và phòng ăn được thiết kế liền kề, giúp tối ưu hóa diện tích và tạo cảm giác thoáng đãng. Với sự kết hợp của cửa kính lớn và các mảng tường gỗ sáng màu, không gian sống luôn tràn ngập ánh sáng tự nhiên, tạo cảm giác gần gũi với thiên nhiên.
Thiết Kế Nội Thất Tinh Tế

Nội thất của căn hộ mang đậm phong cách hiện đại, tối giản nhưng không kém phần sang trọng. Các phòng ngủ được bố trí riêng biệt, mỗi phòng đều có cửa kính lớn, giúp không gian luôn thông thoáng và dễ chịu. Đặc biệt, các cánh cửa trong căn hộ không hề xuất hiện một cách rõ ràng. Thay vì sử dụng các cửa truyền thống, các nhà thiết kế đã khéo léo ẩn cửa vào các mảng tường gỗ, khiến chúng trở nên “biến mất” và hòa mình vào tổng thể không gian.
Phòng Bếp Ấn Tượng Với Thiết Kế Tối Giản

Phòng bếp của căn hộ sử dụng gam màu đen sang trọng, kết hợp hài hòa với trần nhà và sàn nhà có tông màu sáng hơn, mang đến một không gian chiều sâu và thanh thoát. Bàn ăn cũng được bố trí gần cửa sổ để tận dụng ánh sáng tự nhiên, tạo ra một không gian ấm cúng và thoải mái cho các bữa ăn gia đình.
Đặc Điểm Nổi Bật Của Thiết Kế
Một trong những điểm nhấn đáng chú ý của căn hộ này là cách mà các cửa phòng được giấu vào trong các mảng tường gỗ. Thay vì sử dụng cửa thông thường, thiết kế này mang đến sự tối giản, đồng thời giúp không gian căn hộ trở nên gọn gàng, tinh tế hơn. Các chi tiết nội thất và chất liệu như gỗ, kính, và kim loại cũng được chọn lựa kỹ càng để tạo nên một không gian vừa hiện đại, vừa ấm áp.
Với không gian mở và thiết kế thông minh, căn hộ này không chỉ mang lại sự tiện nghi mà còn tạo cảm giác thư giãn, gần gũi với thiên nhiên, lý tưởng cho một cuộc sống hiện đại.

Bản vẽ mặt bằng căn hộ

Thiết kế, thi công: Amore

