Khu vườn treo phủ kín mặt tiền giúp tạo bóng mát, điều hòa nhiệt độ công trình và góp thêm mảng xanh cho đô thị.
Ngôi nhà phố có quy mô 3 tầng, được xây dựng trên khu đất rộng 140 m2 tại góc bùng binh ở một con phố trung tâm TP Quy Nhơn (Bình Định).
Dựa trên phân tích về đặc trưng thời tiết nắng nóng khắc nghiệt tại địa phương và bối cảnh thực tế của khu đất, kiến trúc sư đã lựa chọn phương án tạo một công trình như “ốc đảo xanh” giữa đô thị. Điều này giúp cân bằng một phần vi khí hậu tại chỗ, điều hòa nhiệt độ cho không gian bên trong, đồng thời làm dịu mắt người đi lại trên các tuyến giao thông xung quanh ngôi nhà.
Công trình bao gồm 2 khối chức năng chính: văn phòng làm việc ở tầng một, 2 tầng trên là không gian sinh hoạt riêng của gia đình gồm 5 thành viên.

Khối phòng ngủ và sinh hoạt chung được ốp gạch men gốm, giúp đảm bảo độ bền, thích nghi được với thời tiết mưa nắng khắc nghiệt và gió biển, vừa tạo điểm nhấn cho ngôi nhà.

Phòng bếp – ăn liên thông với khu tiếp khách, bố trí nội thất tối giản nhưng vẫn đầy đủ tiện nghi

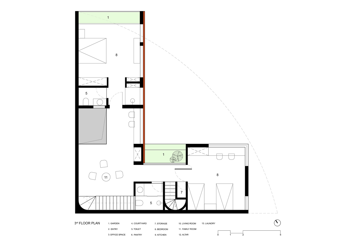
Phòng ngủ có ban công hướng thẳng ra khu hồ phía trước nhà. Phần mái hiên xòe rộng giúp tránh nắng chiếu trực tiếp vào không gian bên trong.

Phòng vệ sinh được phân chia khu vực khô – ướt khoa học, ngăn cách với phòng ngủ bằng vách kính, tạo cảm giác không gian thoáng đãng và rộng rãi.

Một khu vườn treo được thiết kế lơ lửng ở tầng 2, mặt tiền ngôi nhà cũng được bao phủ bởi hàng cúc tần Ấn Độ. Sự xuất hiện của khu vườn đã tạo nên không gian “rỗng”, giúp các phòng chức năng đều được tiếp cận với ánh nắng tự nhiên, gió trời và tầm nhìn xanh mát.

Theo kiến trúc sư chủ trì, ý tưởng xây dựng ngôi nhà như “ốc đảo xanh” nhằm góp phần tạo sự cân bằng với tốc độ bê tông hóa nhanh chóng của đô thị. Bên cạnh đó, công trình cũng hạn chế cảm giác nặng nề của một khối nhà đồ sộ nằm giữa trung tâm thành phố.

Sân trước nhà tầng một và khu vườn treo ở tầng 2 được kết nối với nhau thông qua giếng trời, luôn được bóng cây che mát.

Tầng một gồm khoảng sân rộng rãi và văn phòng công ty, lối đi được tách riêng để thuận tiện cho thói quen sinh hoạt của chủ nhà. Phần tường rào bằng các nan thép thưa đem lại cảm giác gần gũi với hàng xóm, tận dụng được tầm nhìn toàn cảnh ra khu hồ phía trước.

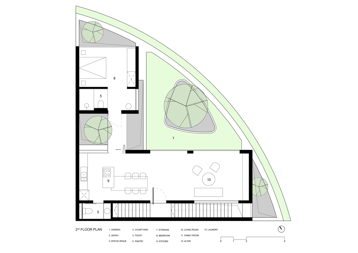
Tầng 2 bố trí không gian chung gồm phòng khách, bếp – ăn và một phòng ngủ. Phòng khách có tầm nhìn trực diện ra khu vườn treo, có lối đi riêng để gia chủ tiện đi dạo, ngắm cảnh.

Lối lên tầng 2
Bản thiết kế:

Địa điểm: Bình Định
Thiết kế: Nghia-Architect
Diện tích: 140m2
Năm dự án: 2023
Nguồn: Internet

